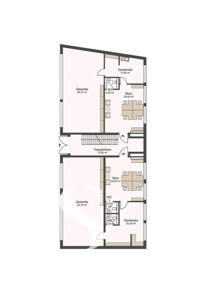
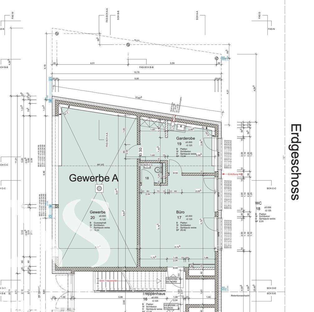
Moderne Gewerbe-/Bürolokale mit vielseitigen Nutzungsmöglichkeiten
Unweit des Dorfzentrums von Tafers und nur wenige Minuten von der Autobahnausfahrt Düdingen entfernt, erwartet Sie eine moderne und flexibel nutzbare Gewerbeliegenschaft. Der Neubau überzeugt mit nachhaltiger Bauweise, zeitgemässer Architektur und einer zentralen Lage – ideal für Unternehmen, die kurze Wege für Kunden und Mitarbeitende schätzen.
Aktuell ist noch 1 Einheit verfügbar. Dank durchdachter Raumaufteilung bietet die Fläche vielseitige Gestaltungsoptionen – sei es als Büro, Lager oder für kombinierte Nutzungen.
Ihre Vorteile auf einen Blick:
Separate Zugänge – über den Ausseneingang oder das Treppenhaus erreichbar
Helle Büroflächen –optimale Arbeitsumgebung mit natürlichem Licht
Praktische Ausstattung – inkl. Pausenraum mit Garderobe und Sanitärbereich
Wettergeschützte Materialverladung – dank grosser Garagentore direkt aus dem Lager
Parkierung – Stellplätze im Innenbereich, zusätzlich 2-3 Stellplätze im Aussenbereich
Nachhaltige Infrastruktur – dank einer Photovoltaik-Anlage auf dem Flachdach ein zukunftsorientiertes Gebäude
Die Liegenschaft ist Teil der Mischzone MZ-1, die Gewerbe-, Dienstleistungs- und Verwaltungsbetriebe sowie Wohnen ermöglicht (ohne nächtliche Lärmemissionen).
Erfahren Sie mehr und kontaktieren Sie uns.
NS Immobilien AG
Postfach 32 I 1712 Tafers
026 505 18 50 I info@ns-immoblien.ch I ns-immobilien.ch
Geschäftsstelle
Dorfplatz 20 I 3150 Schwarzenburg
Locaux commerciaux/bureaux modernes avec de multiples possibilités d'utilisation
Non loin du centre du village de Tavel et à quelques minutes seulement de la sortie d'autoroute de Guin, un immeuble commercial moderne et flexible vous attend. Le nouveau bâtiment convainc par sa construction durable, son architecture contemporaine et sa situation centrale - idéal pour les entreprises qui apprécient les trajets courts pour les clients et les collaborateurs.
Actuellement, une unité est encore disponible. Grâce à une répartition bien pensée de l'espace, la surface offre de nombreuses options d'aménagement, que ce soit pour des bureaux, des entrepôts ou des utilisations combinées.
Vos avantages en un coup d'œil :
- Accès séparés - accessibles par l'entrée extérieure ou la cage d'escalier
- Surfaces de bureau lumineuses - environnement de travail convivial avec lumière naturelle
- Equipement pratique - y compris salle de pause avec vestiaire, kitchenette et sanitaires
- Chargement du matériel à l'abri des intempéries - grâce aux grandes portes de garage directement depuis l'entrepôt
- Parking - places de stationnement à l'intérieur, 2-3 places supplémentaires à l'extérieur
- Infrastructure durable - grâce à une installation photovoltaïque sur le toit plat, c'est un bâtiment orienté vers l'avenir.
L'immeuble fait partie de la zone mixte MZ-1, qui permet l'implantation d'entreprises commerciales, de services et d'administrations ainsi que d'habitations (sans nuisances sonores nocturnes).
Apprenez-en plus et contactez-nous.
RUND UM IMMOBILIEN
wir vermitteln - fair und transparent
NS Immobilien AG
Postfach 32 I 1712 Tafers
026 505 18 50 I info@ns-immoblien.ch I ns-immobilien.ch
Geschäftsstelle
Dorfplatz 20 I 3150 Schwarzenburg















